Gartensauna Casa
3 Basismodelle & Sonderanfertigungen
Die CASA Gartensauna erhalten Sie optional mit umfangreicher Ausstattung.
Eine witterungsfeste Dachbahn, die anthrazitfarbene Attika und ein Regenablaufsystem sind exakt auf die jeweilige Ausführung zugeschnitten und optional erhältlich.
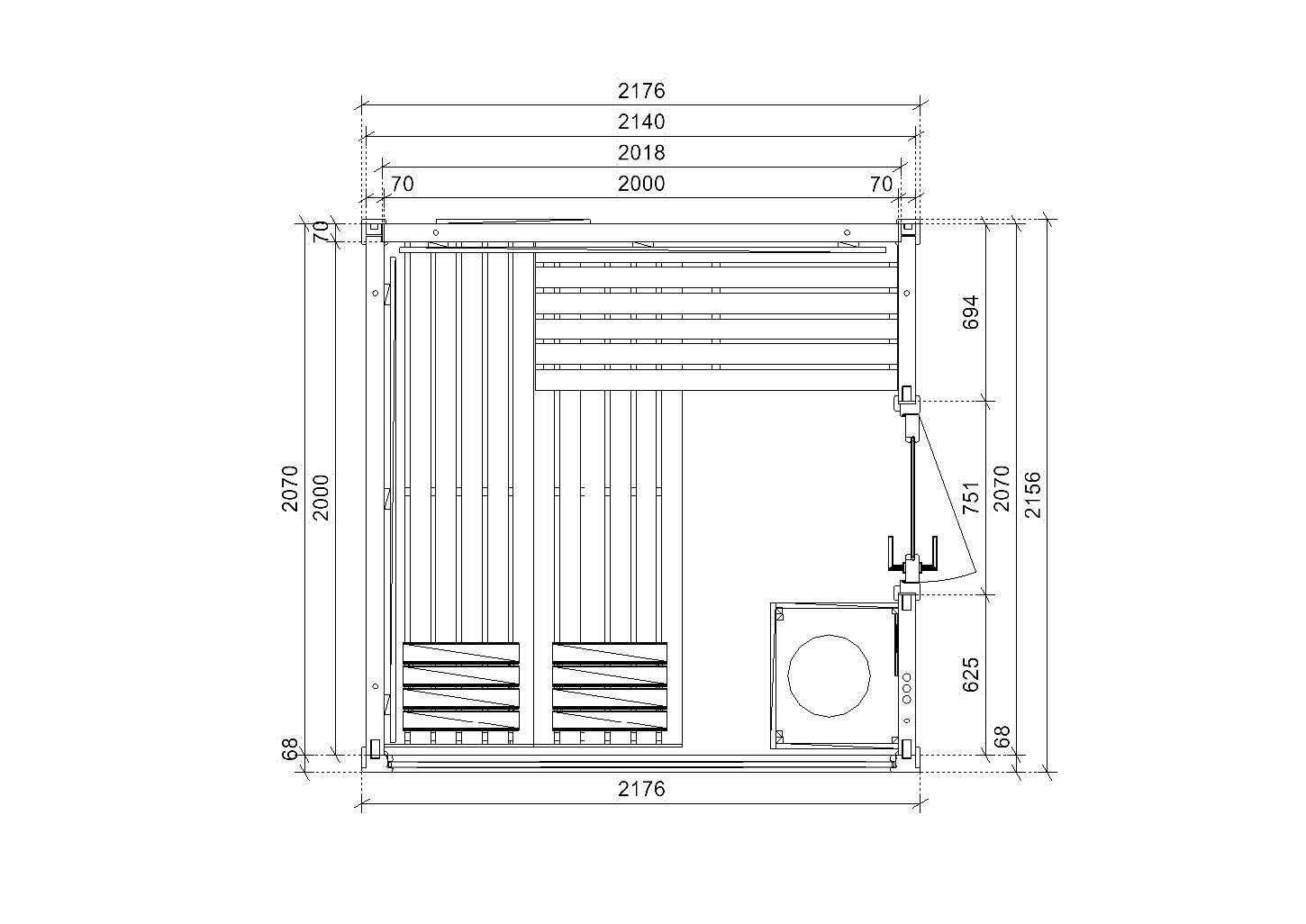
Gartensauna Modell Casa1
Moderne Gartensauna aus massiven Blockbohlen in Nordischer Fichte mit großem Panoramafenster.
- Außenmaß: 2156 x 2176 mm / Innenmaß: 2000 x 2000 mm
- Sockelmaß: 2140 x 2140 mm
- Firsthöhe: 2440 mm / Dachneigung: 2° / Dachfläche: 4,7 m²
Technische Details:
- Blockbohlen aus 70 mm Nordischer Fichte ohne Ecküberstand, mit Gewindestangen
- Fußboden aus 24 mm starken Bodendielen, Grundrahmen imprägniert
- Flachdach, Dachbahn für den vorübergehenden Wetterschutz, Dachschalung aus 18 mm Holzdielen, Giebelblende aus Holz – vorne und an beiden Seiten
- Eingangstür: 630 x 1920 mm, Isolierglas, innen mit Knaufzylinder verschließbar, ohne Anstrich
- Saunafenster: 1930 x 1980 mm, feststehend, Isolierglas
- Inneneinrichtung „Norma“ aus Espe oder Linde
- Liegen: 580 mm breit
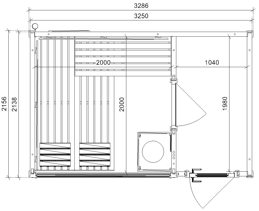
Gartensauna Modell Casa2
Moderne Gartensauna mit Vorraum aus massiven Blockbohlen in Nordischer Fichte mit großem Panoramafenster.
- Außenmaß: 2156 x 3286 mm
- Innenmaße Sauna: 2000 x 2000 mm / Innenmaße Vorraum: 1980 x 1040 mm
- Sockelmaß: 2140 x 3250 mm
- Firsthöhe: 2440 mm / Dachneigung: 2° / Dachfläche: 7 m²
Technische Details:
- Blockbohlen aus 70 mm Nordischer Fichte ohne Ecküberstand, mit Gewindestangen
- Fußboden aus 24 mm starken Bodendielen, Grundrahmen imprägniert
- Flachdach, Dachbahn für den vorübergehenden Wetterschutz, Dachschalung aus 18 mm Holzdielen, Giebelblende aus Holz – vorne und an beiden Seiten
- Eingangstür: 630 x 1920 mm, Isolierglas, innen mit Knaufzylinder verschließbar, ohne Anstrich
- Saunafenster: 1930 x 1980 mm, feststehend, Isolierglas
- Inneneinrichtung „Norma“ aus Espe oder Linde
- Liegen: 580 mm breit
Gartensauna Modell Casa3
Moderne Gartensauna aus massiven Blockbohlen in Nordischer Fichte mit überdachter Terrasse und großem Panoramafenster.
- Außenmaß: 2156 x 3286 mm
- Innenmaße Sauna: 2000 x 2000 mm / Seitlicher Terrassenanbau: 1110 mm
- Sockelmaß: 2140 x 3250 mm
- Firsthöhe: 2440 mm / Dachneigung: 2° / Dachfläche: 7 m²
Technische Details:
- Blockbohlen aus 70 mm Nordischer Fichte ohne Ecküberstand, mit Gewindestangen
- Fußboden aus 24 mm starken Bodendielen, Grundrahmen imprägniert
- Flachdach, Dachbahn für den vorübergehenden Wetterschutz, Dachschalung aus 18 mm Holzdielen, Giebelblende aus Holz – vorne und an beiden Seiten
- Eingangstür: 630 x 1920 mm, Isolierglas, innen mit Knaufzylinder verschließbar, ohne Anstrich
- Saunafenster: 1930 x 1980 mm, feststehend, Isolierglas
- Inneneinrichtung „Norma“ aus Espe oder Linde
- Liegen: 580 mm breit







